|
||
|
||
|
|
GENERALITA' IMMOBILE
|
|||
Codice |
FR167 | Nome |
Appartamento in centro da ristrutturare |
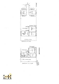
Appartamento Trilocale in Centro a Frosinone – Zona Via Aldo Moro Se cerchi un’opportunità nel cuore di Frosinone, questa è la soluzione che fa per te! Proponiamo in vendita un luminoso e silenzioso appartamento trilocale situato in una posizione strategica, a due passi da Via Aldo Moro, in una zona dotata di ampi parcheggi gratuiti e di tutti i servizi di cui hai bisogno. L’immobile, al secondo piano senza ascensore di una piccola palazzina, si compone di:
Inoltre, l’appartamento include una quota indivisa di un appartamento condominiale affittato, che comporta un costo condominiale molto contenuto di soli 15 euro al mese. La presenza di muri tramezzi all’interno permette di realizzare facilmente una terza camera da letto, offrendo grande flessibilità di utilizzo. Da ristrutturare, questa casa rappresenta un’ottima opportunità di investimento o di personalizzazione, grazie alla sua posizione centrale e alle sue caratteristiche. Contattaci per maggiori informazioni o per fissare una visita! |
|||
Contratto |
Vendita | Destinazione |
Residenziale |
Tipologia |
Appartamenti | Mq complessivi totali |
82 |
Prezzo |
€ 69.000,00 | Classificazione energetica |
In corso di ottenimento |
Cittá |
FROSINONE (FR) | Zona |
Via aldo Moro |
|
DETTAGLIO IMMOBILE
|
|||
Stato |
Da ristrutturare | Piano |
2 |
Totale piani |
4 | Rifiniture |
Normali |
Numero camere letto |
2 | Finitura camera da letto |
Marmette |
Numero bagni |
1 | Finitura bagno |
Marmette |
Soggiorno |
Marmette | Cucina |
Marmette |
Tipologia cucina |
Abitabile | Infissi |
Vetro/Legno |
Riscaldamento |
Metano Comunale | Giardino |
Condominiale |
Box auto |
Ascensore |
No | |
Arredato |
No | Animali ammessi |
Si |
Libero da vincoli |
Descrizione vincolo |
||
Spese condominiali |
Si | Descrizione spese condominiali |
EURO 15,00 |
Anno costruzione |
1955 | ||
|
FILIALE DI RIFERIMENTO
|
|||
Dott. Luca Salvati Il Preposto di ufficio |
CIS Frosinone (FR) Via Via Tiburtina n 259 Tel. 3319050795 Email frosinone@cis-servizi.com |
||
|
Project Manager di riferimento Luca Salvati |
||
|
PLANIMETRIA
|
|||
|
|||
|
FOTOGALLERY
|
|||
|
|||
|
|||
|
|||
|
|||
|
|||
|
|||
|
|||
|
|||
|
|||
|
|||
|
|||
|
|||
|
|||
|
|||
|
|||
|
|||
|
|||
|
|||
|
|||
|
|||
|
|||
|
|||
|
|||
|
MAPPA IMMOBILE
|