|
||
|
||
|
|
GENERALITA' IMMOBILE
|
|||
Codice |
FR172 | Nome |
Appartamento su due livelli in via Garibaldi – Frosinone (Centro Storico) |
Proponiamo in vendita un appartamento disposto su due livelli, situato al secondo e terzo piano di una palazzina di sole 4 unità abitative, in via Garibaldi, nel cuore del centro storico di Frosinone.
L'immobile è così composto:
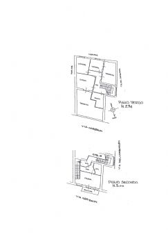
* Piano inferiore: ingresso con disimpegno, cucina abitabile con camino e un bagno. * Piano superiore: tre camere da letto, secondo bagno, un balcone e un ampio terrazzo vivibile, ideale per momenti di relax o per pranzi all'aperto.
L'appartamento è in buone condizioni generali e già abitabile, necessitando solo di alcuni interventi di manutenzione sul terrazzo. La posizione è strategica: nel centro storico ma ben collegata alla parte bassa della città tramite viale Roma, offrendo così tutti i vantaggi del centro senza rinunciare alla comodità dei collegamenti.
Ottima soluzione sia come abitazione principale che come investimento, grazie alla presenza di tre camere da letto che lo rendono ideale anche per affitti a studenti o lavoratori.
Contattaci per maggiori informazioni o per fissare una visita! |
|||
Contratto |
Vendita | Destinazione |
Residenziale |
Tipologia |
Appartamenti | Mq complessivi totali |
110 |
Prezzo |
€ 70.000,00 | Classificazione energetica |
G |
Cittá |
FROSINONE (FR) | Zona |
Via Garibaldi |
|
DETTAGLIO IMMOBILE
|
|||
Stato |
Buono | Piano |
2 |
Totale piani |
2 | Rifiniture |
Normali |
Numero camere letto |
3 | Finitura camera da letto |
Ceramica |
Numero bagni |
2 | Finitura bagno |
Ceramica |
Soggiorno |
Ceramica | Cucina |
Ceramica |
Tipologia cucina |
Abitabile | Infissi |
Vetro/Legno |
Riscaldamento |
Metano Comunale | Giardino |
No |
Box auto |
Ascensore |
No | |
Arredato |
No | Animali ammessi |
Si |
Libero da vincoli |
Si | Descrizione vincolo |
|
Spese condominiali |
No | Descrizione spese condominiali |
|
Anno costruzione |
1967 | ||
|
FILIALE DI RIFERIMENTO
|
|||
Dott. Luca Salvati Il Preposto di ufficio |
CIS Frosinone (FR) Via Via Tiburtina n 259 Tel. 3319050795 Email frosinone@cis-servizi.com |
||
|
Project Manager di riferimento Gian Paolo |
||
|
PLANIMETRIA
|
|||
|
|||
|
FOTOGALLERY
|
|||
|
|||
|
|||
|
|||
|
|||
|
|||
|
|||
|
|||
|
|||
|
|||
|
|||
|
|||
|
|||
|
|||
|
|||
|
|||
|
|||
|
|||
|
|||
|
|||
|
|||
|
|||
|
MAPPA IMMOBILE
|