|
||
|
||
|
|
GENERALITA' IMMOBILE
|
|||
Codice |
GH225 | Nome |
CASA INDIPENDENTE CON GIARDINO |
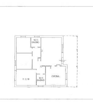
Una casa indipendente pensata per una coppia giovane che desidera rallentare i ritmi quotidiani e ritagliarsi uno spazio di vero benessere, senza rinunciare alla comodità dei servizi e dei collegamenti.L’immobile, di circa 160 mq, è composto da ingresso, cucina abitabile, salone, due camere da letto, due bagni e una terza stanza jolly, ideale come lavanderia, deposito o spazio multifunzione. All’esterno, giardino privato e veranda vivibile completano una soluzione da vivere tutto l’anno, insieme al doppio cancello carrabile.Dotata di utenze comunali, termocamino, caldaia e bombolone del gas esterno, la casa si trova in posizione riservata ma a pochi passi dai servizi e dal casello autostradale. |
|||
Contratto |
Vendita | Destinazione |
Residenziale |
Tipologia |
Indipendenti/Semindipendenti/Palazzine | Mq complessivi totali |
160 |
Prezzo |
€ 260.000,00 | Classificazione energetica |
G |
Cittá |
VALMONTONE (RM) | Zona |
COLLE SAN GIUDICO |
|
DETTAGLIO IMMOBILE
|
|||
Stato |
Buono | Piano |
Piano terra |
Totale piani |
Rifiniture |
Buone | |
Numero camere letto |
2 | Finitura camera da letto |
Ceramica |
Numero bagni |
2 | Finitura bagno |
Ceramica |
Soggiorno |
Ceramica | Cucina |
Ceramica |
Tipologia cucina |
Abitabile | Infissi |
Doppio Vetro/Metallo |
Riscaldamento |
Metano Comunale | Giardino |
Si |
Box auto |
Ascensore |
No | |
Arredato |
No | Animali ammessi |
Si |
Libero da vincoli |
Si | Descrizione vincolo |
|
Spese condominiali |
No | Descrizione spese condominiali |
|
Anno costruzione |
1985 | ||
|
FILIALE DI RIFERIMENTO
|
|||
Fortunato Vadala Il Preposto di ufficio |
GOLDEN HOUSE VALMONTONE VALMONTONE (RM) Via CASILINA 100 Tel. |
||
|
PLANIMETRIA
|
|||
|
|||
|
FOTOGALLERY
|
|||
|
|||
|
|||
|
|||
|
|||
|
|||
|
|||
|
|||
|
|||
|
|||
|
|||
|
|||
|
|||
|
|||
|
|||
|
|||
|
|||
|
|||
|
|||
|
|||
|
|||
|
|||
|
|||
|
|||
|
|||
|
|||
|
|||
|
MAPPA IMMOBILE
|